Nouvelle recherche Cette annonce m'intéresse

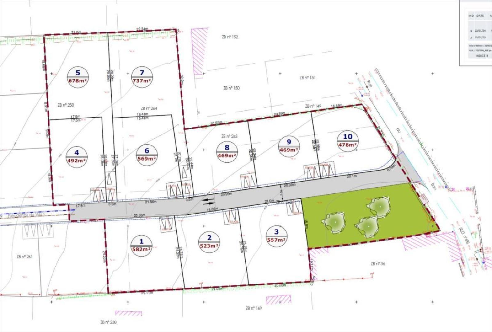
A vendre : Terrain - 469m² - Tourville-sur-Sienne (50200)

Prix : 59 530,00 
Type de bien : Terrain
Terrain : 469,00m²
Localité : Tourville-sur-Sienne (50200)
Référence : 6269

Description du bien

Résidence du Val 2 à Tourville sur Sienne : terrain à bâtir dans une nouvelle résidence de 11 lots, dans le centre du village, au calme, à 5 min des commodités, à 4 min de la station balnéaire d'Agon coutainville et de sa plage, à 11 min de coutances. Ces terrains seront vous séduire par leur belle situation dans la baie de la sienne. Une remise de 5000 euros sera effectué sur les 5 premières ventes de terrains.  Terrains libre de constructeurs, renseignements sur simple demande. Les informations sur les risques auxquels ce bien est exposé sont disponibles sur le site Géorisques : www. georisques.gouv.fr

Mandat

Téléphone mandataire : 02.33.47.18.44 ou 02.33.47.18.44 ou 02.33.47.18.44

Cette annonce m'intéresse

Captcha
* Les champs suivis d'un astérisque sont obligatoires.

Conformément à la loi n°78-17 du 6 janvier 1978 modifiée relative à l'informatique, aux fichiers et aux libertés, et au règlement européen 2016/679, dit Règlement Général sur la Protection des Données (RGPD), vous disposez d'un droit d'accès, de rectification, de suppression des informations qui vous concernent.
Navigateur non pris en charge

Le navigateur Internet Explorer que vous utilisez actuellement ne permet pas d'afficher ce site web correctement.

Nous vous conseillons de télécharger et d'utiliser un navigateur plus récent et sûr tel que Google Chrome, Microsoft Edge, Mozilla Firefox, ou Safari (pour Mac) par exemple.
OK